



Perspectives



Phased Completed Video


Site Map








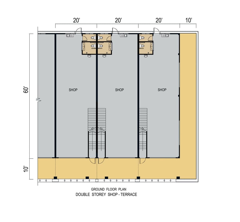
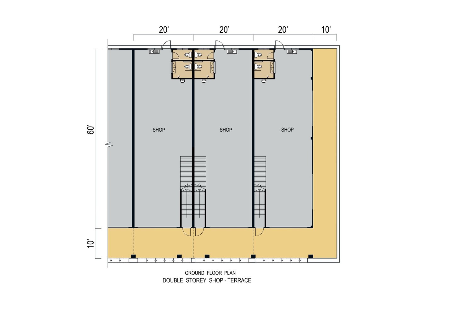
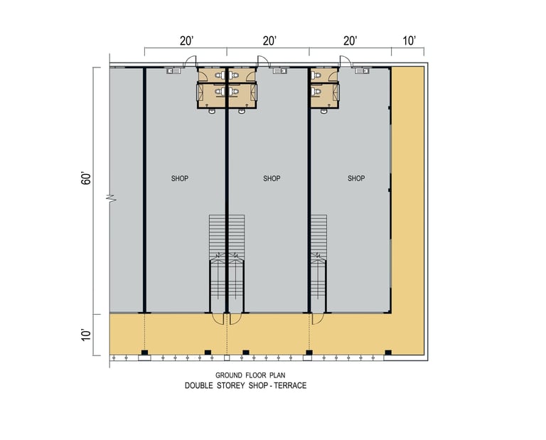
Building Layouts
Lunas Bungalow Floor Plan
Lunas Semi Detached Floor Plan (Corner Lot)
Lunas Semi Detached Floor Plan




Explore our Brochure
Download the full brochure for detailed project information.
Bandar Permata Lunas
Bandar Permata Lunas is a mixed-use township development located in Lunas, Kedah.
